
It doesn’t get much better than this, you can literally touch the river's gently lapping waters from your very own deck! Welcome to the little "Boat House" as known by locals.
Down a private driveway, surrounded by natives, you will find this magical haven right on the river's edge - there is even a private jetty and fishing area! Once a fisherman's shack (circa 1948) and over the years converted into a beautiful quaint home, complete with a large deck from where you can enjoy this stunning location to its fullest. Here you will find what I would call a cute yet modern and bespoke cottage, in one of the best locations you will see, that has a quirky and “truly special location feel" with good vibes, like you are in your very own hideaway oasis. Offering a peaceful lifestyle like no other:
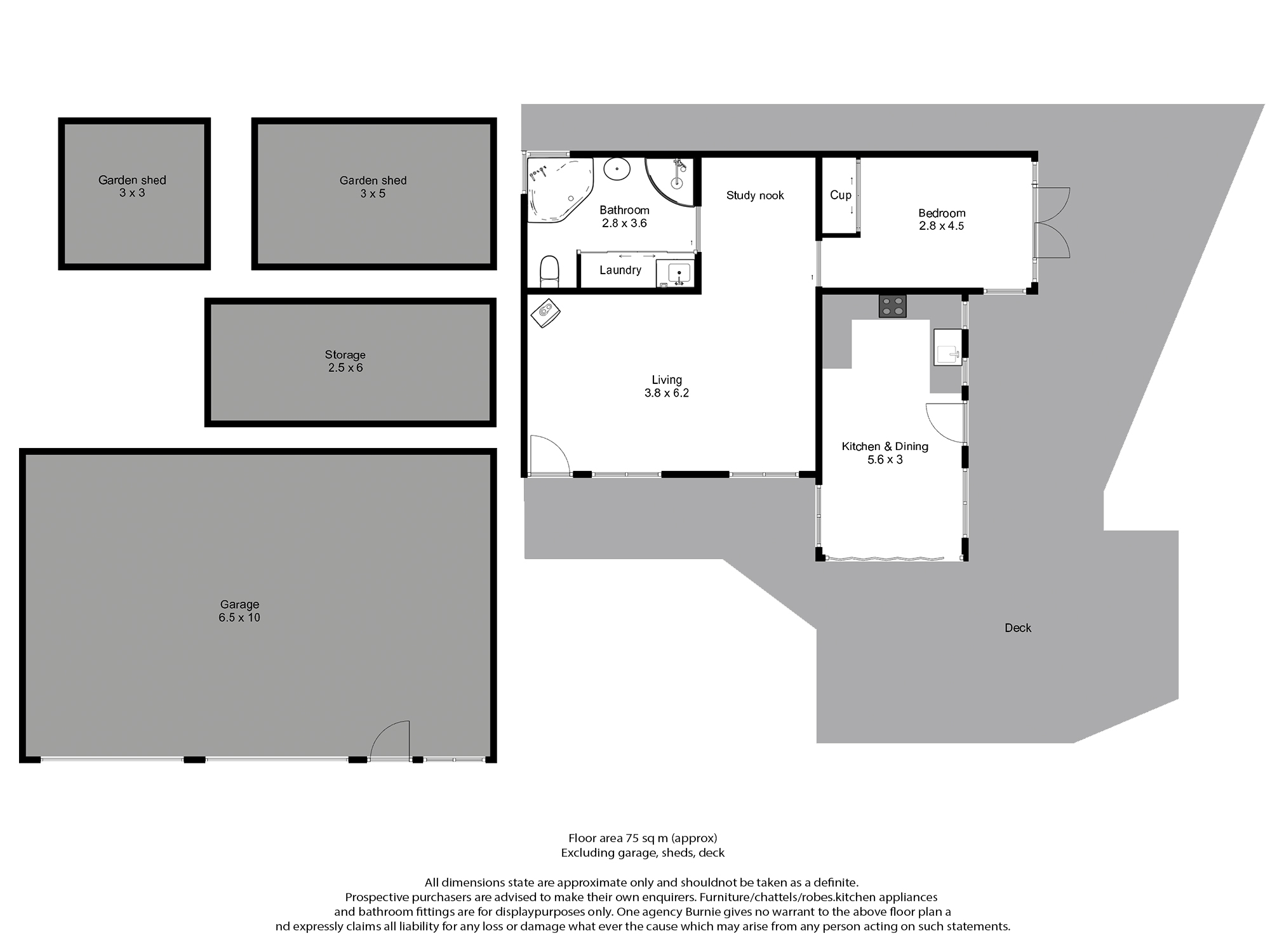
- Absolute river frontage, dream location!
- Flowing floor plan sees the open-plan living open onto kitchen/dining area
- Dining area has bi-fold doors, allowing you to totally open the whole side of the room, inviting the outdoors in
- Sunny home, built to maximise the river views and soothing bush backdrop
- Great deck wraps around the home, accessed from the bedroom, lounge, dining room & kitchen
- Spacious bathroom, complete with corner spa
- Main bedroom has its own views of the river
- Polished timber floorboards
- Cosy wood heater from the winter
- Solar panels and solar hot water system
- Established gardens, decking pathway and shrubs
- Great size block of 2,196m2 / half an acre (approx.)
- Separate single garage with roller door
- 3-bay steel shed, complete with power, 2 roller doors (good vehicle storage or workshop space)
- Container for extra storage will remain
- 'Drive in drive out’ driveway is a real bonus
- 10 minutes drive to either Burnie or Penguin, 15 minutes drive to Ulverstone
- Your own jetty, steps into the water, and feed the local ducks on the river
- Swimming, fishing and boating are literally at your doorstep!
- Bush walking trails abound in the nearby hills at Heybridge and Penguin
- Coastal Pathway extends from Heybridge to Penguin: great for walking the dog, cycling etc
Properties like this are a once in a life time opportunity. Once you visit, you will not want to leave, giving a feeling as though you are on holiday, every day… We look forward to showing you through!
Drive-by is not recommended as you cannot see anything from the lane way, inspections by appointment only. For inspections: parking is limited, please park at the top of the driveway and walk down into the property.
Size: 65m2 (approx.)
Land Size: 2,196m2 (approx.)
Beds: 1
Baths: 1
Garage Spaces: 3
Open Spaces For Vehicles: 4
Year Built: 1948
Council Rates: $1,352 p/a (approx.)
Water Rates: $228 p/qu (approx.)
One Agency Burnie has no reason to doubt the accuracy of the information in this document which has been sourced from means which are considered reliable, however we cannot guarantee accuracy. Prospective purchasers are advised to carry out their own investigations.